zurück     Alle Zeichnungen dürfen Privat verwendet werden . Wenn jemand das Haus bauen will dann freut mich das !

Pläne vom Haus der Freude vom 25.09.2016  (werden sich noch ändern)

Keller (Keller neu ab 21.09.2016)


-------------------------------------------------------------------------------------------------------------------------------------------------------
Erdgeschoß (neu am 21.09.2016)

--------------------------------------------------------------------------------------------------------------------------------------------------

1.Stockwerk (neu am 01.08.2016)

---------------------------------------------------------------------------------------------------------------------------------------------------------

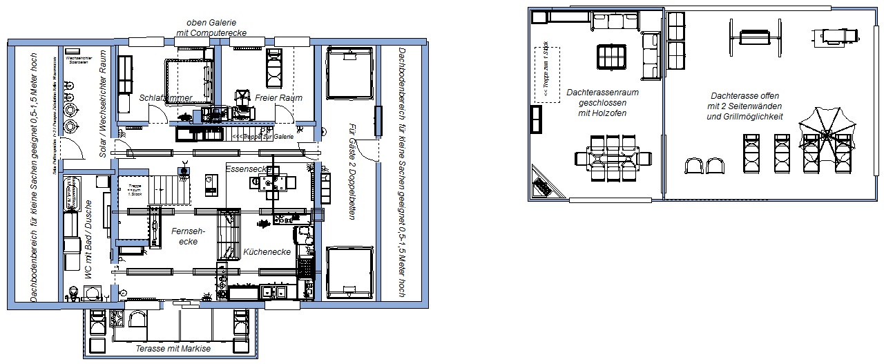
Dachgeschoß (neu am 13.08.2016)

------------------------------------------------------------------------------------------------------------------------------------------------------

Dachgeschoß (Galerie)  (neu am 13.08.2016)

                       Die Galerie kann man nur über die Treppe erreichen
                                            vom Dachgeschoß aus

zurück