zurück  Pläne vom HdF 2x4 (Also 2 Familienhaus)

Keller

-------------------------------------------------------------------------------------------------------------------------------------
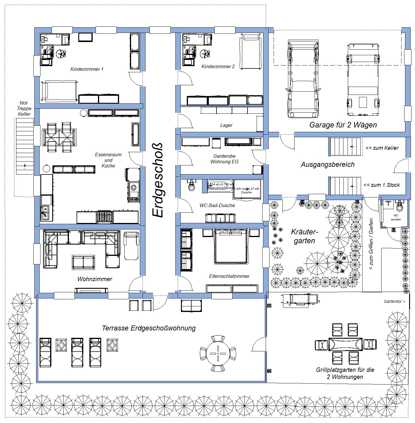
Erdgeschoß

------------------------------------------------------------------------------------------------------------------------------------
1.Stock

zurück